Die Drehorte
"Belvedere"
Stand: 03.05.2012, letzte Durchsicht 31.12.2024
"Belvedere" - The Williams Mansion, Charleston, SC (Folgen 1 - 6)
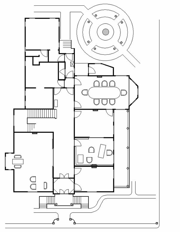
Drehort-Übersichtsplan "Belvedere" Folgen 1 - 6, Erdgeschoss und außen
Drehort-Übersichtsplan "Belvedere" Folgen 1 - 6, Obergeschoss
"Belvedere" - The Williams Mansion, Charleston, SC (Folgen 7 - 12)
Drehort-Übersichtsplan "Belvedere" Folgen 7 - 12
"Belvedere" - The Williams Mansion, Charleston, SC (Folgen 1 - 6)
|
Beschreibung |
Belvedere, Lehigh Station, PA, außen (Aufgang, Garten) und innen (Halle, Salon, Arbeitszimmer, Speisesaal, Treppe, obere Schlafzimmer) |
|||||||||||||
|
Drehort real |
The |
|||||||||||||
|
1 |
2 |
3 |
4 |
5 |
6 |
7 |
8 |
9 |
10 |
11 |
12 |
13 |
14 |
15 |
|
Folge 01, Szene 26, 28 Folge 03, Szene 05, 06, 07, 13, 14, 29, 31, 32, 33, 34, 38, 39, 40, 41, 42, 43 Folge 05, Szene 15, 16 Folge 06, Szene 33, 34, 35, 43, 44, 45, 46 |
||||||||||||||
|
|
|
|
|
|
|
|
|
|
|
|
|
|
|
|
Bildervergleich Film und Realität

Film: Straßenseite mit Eingang real: Straßenseite, Eingang und Balkone

Film: Großer Balkon EG real: großer Balkon 1. OG

Film: Seite rechts hinten real: Seite und Garten hinten rechts

Film: Speisesaal real: Speisesaal

Film: 1. Staffel, Treppe real: Treppe

Film: 1. Staffel, Halle real: Halle, vorn zum Salon, hinten Treppe

Film: 1. Staffel, großer Salon, Blick hinein real: Salon, Blick zum Engang

Film: 1. Staffel, Arbeitszimmer real: Bibliothek
Navigation: Zum Inhaltsverzeichnis - Zur Startseite
Drehort-Übersichtsplan "Belvedere" Folgen 1 - 6, Erdgeschoss und außen
Drehorte für Garten, Eingang (unten), großer Salon (links unten), Diele, Bibliothek (rechts Mitte), kleiner Salon (über Bibliothek), Speiseraum (rechts oben), Treppe (links Mitte), Hintereingang (oben), 1. Balkon (rechts)

Drehort-Übersichtsplan "Belvedere" Folgen 1 - 6, Obergeschoss
Drehorte für George und Constance's Zimmer (rechts unten), Stanley und Isabel's Zimmer (links unten), Virgilia's Zimmer (links Mitte), 2. Balkon (Folge 3, rechts), kleiner Balkon (Folge 6, unten)

Navigation: Zum Inhaltsverzeichnis - Zur Startseite
The William Mansion (Calhoun Mansion)
The Williams Mansion (ehemals Calhoun Mansion)
Charleston, SC 29401
Tel (843) 722-8205
https://www.williamsmansion.com
Führung "Gilded Age Tour", 45 Minuten (Zeiten und Preise folgen online)
Führung "Grand Tour", 90 Minuten (Zeiten und Preise folgen online)
Williams Mansion wurde 1876 vom wohlhabenden Händler George Walton Williams in Charleston, SC errichtet. Das vikotorianische Gebäude kostete 200.000 Dollar, damals ein sehr hoher Preis. Es umfasst etwa 7.300 Quadratmeter in 35 Räumen, 23 Kaminfeuerstellen, ein Musikzimmer mit 6 auf 10 Metern und einem großen Dachfenster in 13 Metern Höhe, drei Balkonebenen sowie einer Haupttreppe bis in 22 Metern Höhe. Die Eingangshalle ist gut 20 m lang, 4,5 m breit und 4,5 m hoch. Williams Mansion ist damit die größte Einzelresidenz in Charleston, SC.
Das Grundstück wurde erstmals um 1780 nachgewiesen, als es im Besitz von Governeur Charles Pinkney und Teil des Lowndes-Anwesens war, auf dem George Washington im Mai 1791 einkehrte. Der sehr wohlhabende und angesehene Geschäftsmann George Walton Williams erwarb 16 Meeting Street im Jahre 1862 für 40.000 konföderierte Dollar. Nach dem Krieg beschloss er, ein großes Haupthaus als seinen Beitrag zur Wiedererrichtung von Charleston nach dem Bürgerkrieg zu bauen. Die Fertigstellung dauerte fünf Jahre und gab vielen anderweitig arbeitslosen Arbeitern und Künstlern in dieser schwierigen Zeit ein Auskommen.
Nach William's Tod 1903 ging das Haus durch viele Hände mit unterschiedlichen Nutzungen und erhielt in dieser Zeit auch seinen neuen Namen "Calhoun Mansion" zur Ehrung des 1850 verstorbenen Staatsmannes aus South Carolina, der aber zu diesem Anwesen in keiner Beziehung stand. Nachdem das Gebäude ab 1972 als Hotel genutzt wurde, erwarb es im Jahr 2004 der Charlestoner Bürger und Kunstsammler Howard Stahl, der es zum Museum umwidmete und in den Originalzustand zurückversetzte. Im Zuge der Unruhen um alte Südstaatensymbole erhielt es um 2018 seinen alten Namen "Williams Mansion" zurück. Das Haus wird auch heute noch als Stahl's Privatresidenz genutzt, aber Teile des Anwesens sowie die Antiquitätensammlung können im Rahmen von Führungen besichtigt werden.

Meeting Street 16, Charleston, SC © Google Maps Luftbild © Google Maps
Navigation: Zum Inhaltsverzeichnis - Zur Startseite
"Belvedere" - Freemont Mansion, Los Angeles, CA (Folgen 7 - 12)
|
Beschreibung |
Belvedere, Lehigh Station, PA, innen (Halle, Salon, Treppe, oberes Schlafzimmer) |
|||||||||||||
|
Drehort real |
Fremont Mansion, 56 Fremont Place, Los Angeles, CA |
|||||||||||||
|
1 |
2 |
3 |
4 |
5 |
6 |
7 |
8 |
9 |
10 |
11 |
12 |
13 |
14 |
15 |
|
Folge 07: Szene 07, 08 Folge 09: Szene 02 Folge 10: Szene 37 Folge 11: Szene 06, 14, 15, 16, 18 Folge 12: Szene 28, 29 |
||||||||||||||
|
|
|
|
|
|
|
|
|
|
|
|
|
|
|
|
Bildervergleich Film und Realität

Film: 2. Staffel, große Haupttreppe real: Eingangshalle mit Treppe
Film: 2. Staffel, Großer Salon real: Großer Salon
Film: 2. Staffel, Bibliothek real: Bibliothek
Vermutlich weil das aus den ersten Folgen bekannte damalige Calhoun Mansion in Charleston für die Dreharbeiten zur zweiten Staffel nicht zur Verfügung stand, wich man auf ein ähnlich oppulent ausgestattetes Anwesen aus, diesmal im weit entfernten Kalifornien. Das in einer reichen Villengegend von Los Angeles liegende Prunk-Anwesen (Baujahr unbekannt, aber sicherlich keine historische Substanz) weist jedoch etliche bauliche Unterschiede auf, sodass die Szenen überwiegend "nachts" gedreht wurden um dies nicht zu offensichtlich werden zu lassen. Außenaufnahmen waren aus dem gleichen Grund garnicht möglich, sodass für die Vorspannszenen Bildmaterial aus den Folgen 1 - 6 verwendet wurde.
"Fremont Mansion" liegt in einer verkehrsberuhigten Siedlung von Los Angeles zwischen weiteren, sehr opulenten Anwesen, an der Ecke Fremont Place und West 8th Street. Es ist ein moderner, lediglich 2-stöchiger Bau mit historisierter Fassade und Flachdach, umgeben von Grünanlagen, einer Auffahrt von Straße und einem Pool mit Veranstaltungsanbau. Die Rundbogenausbuchtung in der Fassade gegenüber der Eingangstür ist in den Innenaufnahmen hinter der Haupttreppe zu sehen.
Vergleicht man aktuelle Innenaufnahmen mit den Film-Szenen, so fällt auf, dass im Gegensatz zum historischen "Williams Mansion" (ehem. Calhoun Mansion) das Mobiliar und sehr viel der Dekoration für die Aufnahmen ausgetauscht wurde. Gedreht wurde nur in einigen Räumen des gewaltigen Anwesens, und zwar in der Eingangshalle mit der markanten Treppe, dem großen Salon, der Bibliothek und einem Schlafraum im Obergeschoss.
Fremont Mansion, 56 Fremont Place, Los Angeles 90005
Navigation: Zum Inhaltsverzeichnis - Zur Startseite
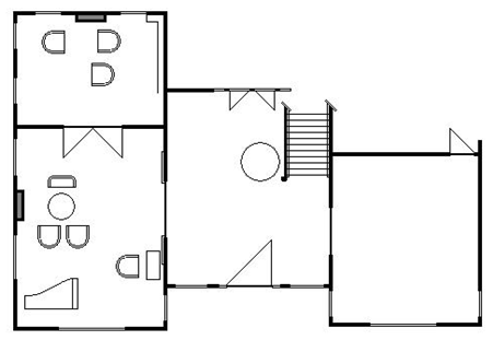
Drehort-Übersichtsplan "Belvedere" Folgen 7 - 12
Drehorte für Eingangshalle mit unterem Treppenabsatz, Salon (links unten) und Bibliothek (links oben)

Drehorte für überen Treppenabsatz und Zimmer von George und Constance

Navigation: Zum Inhaltsverzeichnis - Zur Startseite