Die Drehorte
"Richmond"
Stand: 21.06.2012, letzte Durchsicht 27.11.2024
Gebäude und Drehorte für Richmond, VA
Ballsaal, Spootwood Hotel, Richmond
Der Amtssitz von Präsident Jefferson Davis, Richmond
"Das Weiße Haus der Konföderation"
Gebäude und Drehorte für Richmond, VA
|
Beschreibung |
Bent's Haus in Richmond, VA |
|||||||||||||
|
Drehort real |
|
|||||||||||||
|
1 |
2 |
3 |
4 |
5 |
6 |
7 |
8 |
9 |
10 |
11 |
12 |
13 |
14 |
15 |
|
Folge 07, Szene 30 Folge 08, Szene 11, 12, 42 Folge 10, Szene 27, 29 |
||||||||||||||
|
|
|
|
|
|
|
|
|
|
|
|
|
|
|
|

Film: Haus von Elkanah Bent in
Richmond
Real: George Eveleigh House, 39 Church Street
Zur Zeit der Filmaufnahmen stand das George Eveleigh House in der Church Street leer. Daher bot es für die dargestellte, notleidende Kriegszeit sowie als Tarnung für Bent's luxuriösem Lebensstiel die passende Kulisse. Ursprünglich errichtet 1743, nahm es mit seinem asymetrischen Grundriss und dem über alle Stockwerke reichenden Treppenhaus die architektonischen Grundzüge des kommenden Jahrhunderts vorweg. Es wurde erst im Jahr 2008 für 4,2 Mio. Dollar verkauft.
39 Church Street Google Maps
Die Filmaufnahmen fanden auch in den Innenräumen des Hauses statt:

Film: Salon Real: Salon, mit originalen Möbeln

Film: Salon, Feuerstelle Real: Salon, Feuerstelle
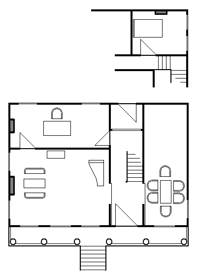
Drehort-Überichtsplan "Bent-Haus Richmond"
Unten: Erdgeschoss mit Aufgang, Veranda, Diele, Salon (links unten), Nebenzimmer (links oben). Oben: Obergeschoss (Ausschnitt) mit Treppe und Schlafzimmer.

Navigation: Zum Inhaltsverzeichnis - Zur Startseite
|
Beschreibung |
Spootswood Hotel, Richmond, VA, Eingang und Foyer |
|||||||||||||
|
Drehort real |
Dock
Street Theater, |
|||||||||||||
|
1 |
2 |
3 |
4 |
5 |
6 |
7 |
8 |
9 |
10 |
11 |
12 |
13 |
14 |
15 |
|
Folge 07, Szene 18 |
||||||||||||||
|
|
|
|
|
|
|
|
|
|
|
|
|
|
|
|

Ankunftsszene am "Spotswood Hotel", Richmond, VA. Gedreht wurde dies vor und im Foyer des Dock Street Theater, 135 Church Street, Charleston, SC (zum Gebäude siehe auch zu Charleston). Auch die Szene mit Greene's Aufwartung an Virgilia in Philadelphia und der Vorspann für die Büroszene von Detektiv Haller in Richmond wurde hier gedreht.
Church Street mit Dock Street Theater Google Maps
Navigation: Zum Inhaltsverzeichnis - Zur Startseite
|
Beschreibung |
Spootswood Hotel, Richmond, VA, Ballsaal |
|||||||||||||
|
Drehort real |
Old
Exchange, |
|||||||||||||
|
1 |
2 |
3 |
4 |
5 |
6 |
7 |
8 |
9 |
10 |
11 |
12 |
13 |
14 |
15 |
|
Folge 07, Szene 19 - 21 |
||||||||||||||
|
|
|
|
|
|
|
|
|
|
|
|
|
|
|
|

Film: im Ballsaal Real: Old Exchange, Great Hall

Film: im Ballsaal Real: Old Exchange, Great Hall
Szenen auf dem Präsidenten-Ball im Saal des "Spotswood Hotel", Richmond, VA. Gedreht wurde in der "Great Hall" des Old Exchange Building, 122 East Bay Street, Charleston, Charleston, SC.
Das historische Gebäude, mit vollem Namen "Old Exchange Building & Provost Dungeon" (altes Handelshaus und Verließ der Stadtordnungskräfte) wurde ab 1768 errichtet, um den starken und für den Wohlstand der Stadt Charleston so wichtigen Seefahrt-Handel weiter vorantreiben zu können. 1771 war der Bau vollendet, in dessen Kellergewölben Gefängnisse für Ordnungsstörer eingerichtet wurden.
In der wechselvollen Geschichte der Stadt und dieses Gebäudes findet sich auch der einflussreiche Pflanzer Isaac Hayne, einem bereits in England in Ungnade gefallenen und in Amerika zu Wohlstand gekommenen Mann. Er begehrte in den Nachwehen des Unabhängigkeitskrieges 1780 gegen die erneute Besetzung von Charleston durch die Briten auf, wurde gefangen genommen, im Keller des "Exchange Building" eingesperrt und am 31. Juli 1781 hingerichtet.
Ab 12. Mai 1788 fand im "Exchange Building" die Generalversammlung von South Carolina statt, welche am 23. Mai die US-Verfassung mit 149 zu 73 Stimmen ratifizierte. 1791 besuchte George Washington die Stadt für eine Woche. Vom Balkon des "Old Exchange" hielt er eine Rede zu den Bürgern, und es fand darin ein Ball zu seinen Ehren statt. 1815 - das neue und größere "U.S. Custom House" war bereits fertiggestellt - zog hier die Postverwaltung ein.
Zweimal wurde das Gebäude schwer beschädigt: im Bürgerkrieg (Instandsetzung bis 1875) und durch ein Erdbeben 1886. 1913 wurde es geschlossen und an den Staat South Carolina sowie den Historienverein "Daughters of the Revolution" verkauft. Zur 200-Jahr-Feier der Vereinigten Staaten wurde es 1976 gründlich restauriert. Die enthaltenen Räume können für Veranstaltungen gebucht werden.
Die Szenen auf dem Präsidentenball wurden in der "Great Hall" im Obergeschoss gedreht, die mit 13 x 14 Metern Größe bis zu 250 Personen Platz bietet. Die charakteristischen Säulenreihen an allen vier Wänden stützen einen Deckenumlauf ab und bieten einen geschützten Aufenthaltsbereich an den Rändern, während in der Mitte getanzt wird. Die Fenster wurden mit Vorstell-Blenden (mit Vorhängen oder Fahnenschmucck versehen) verdeckt, um eine Abendstimmung zu erzeugen.
Old Exchange, 122 East Bay Street Google Maps
Der Amtssitz von Präsident Jefferson Davis, Richmond
|
Beschreibung |
Amtssitz von CS-Präsident Davis, außen, Vorzimmer, Präsidentenbüro, Orry's Büro |
|||||||||||||
|
Drehort real |
unbekannt |
|||||||||||||
|
1 |
2 |
3 |
4 |
5 |
6 |
7 |
8 |
9 |
10 |
11 |
12 |
13 |
14 |
15 |
|
Folge 07, Szene 09 Folge 08, Szene 06, 18, 39 Folge 10, Szene 14, 25 Folge 11, Szene 03, 37 Folge 12, Szene 02 |
||||||||||||||
|
|
|
|
|
|
|
|
|
|
|
|
|
|
|
|
Der Amtssitz des konföderierten Präsidenten Davis in Richmond, auch genannt das "Weiße Haus der Konföderation", ist im Original noch vorhanden, jedoch als Museum genutzt und so von Hochhäusern umstellt, dass es für Dreharbeiten ungeeignet ist. Deshalb hier einige Bilder aus dem Film sowie historische und aktuelle vom originalen Gebäude.
Als Außenansicht des "Weißen Hauses der Konföderation" dient die nördliche Seite der Saint Philips-Kirche in Charleston, welche mit der zugehörigen Church Street im Kapitel "Charleston" ausführlich vorgestellt wird. Die seitlich gezeigten Säulen und der eher schlichte, seitliche Zugang mit kleiner Treppe sind dem Original durchaus nicht unähnlich (siehe weiter unten). Der Eingang befindet sich auf der Nordseite der Kirche, unmittelbar unterhalb des Turmes. Die dortigen vier Säulen werden durch die Kameraführung, die davor postierten Soldaten und das schmiedeeiserne Tor einigermaßen kaschiert.
Church Street, St. Philips Church Google Maps
Die Innenräume von Präsident Davis sowie von Orry's Büro konnten noch nicht identifiziert werden.

Film: Amtssitz Davis, Richmond, VA, Portal Real: St. Philips Church, 142 Church Street, Charleston

Film: Amtssitz Davis, Richmond, VA, Eingang seitlich Real: St. Philips Church, Eingang nördlich

Film: Amtssitz Davis, Richmond, VA,Vorzimmer Film: Amtssitz Davis, VA, Amtszimmer
Drehort-Übersichtsplan "Davis Amtssitz Richmond"
Oben: Präsidentenbüro und Vorzimmer, unten rechts Eingangsbereich außen, unten links Orry's Büro

Navigation: Zum Inhaltsverzeichnis - Zur Startseite
"Das Weiße Haus der Konföderation"
The Museum of the Confederacy
Tel. (804) 649-1861
http://www.moc.org/site/PageServer
Öffnungszeiten: Mo - Sa 10:00 - 17:00, So 12:00 - 17:00
Eintritt mit Museum $12

Historisch: Amtssitz in der Zeit der Konföderation Historisch: Nutzung als Schulhaus, dann Museum

Real:
Museum of the
Confederacy
Real: Gesamtansicht heute
Geschichte
1818 Errichtung als 2-stöckigen Wohnsitz des Praktischen Arztes und Bankiers Dr. John Brockenbrough
1857 Neueinrichtung für den jetzigen Besitzer, den Großgärtner Lewis Crenshaw, Aufbau 2. OG mit Umlaufdach, edle Innenausgestaltung
06/1861 Stadt Richmond kauft das Gebäude von Crenshaw für 42.000 Dollar, will es Davis vermachen, was dieser ablehnt. Die könföderierte Regierung mietet es als Amts- und Wohnsitz ("Executive Mansion") des Präsidenten der Konföderierten Staaten von Amerika
08/1861 Jefferson Davis bezieht mit seiner Familie das Gebäude, wird zum Zentrum des politischen und gesellschaftlichen Lebens
02.04.1865 Niederlage der Konföderation, Regierungssitz aufgehoben, Präsident und Regierung geflohen
05/1865 Truppenstützpunkt während der Besatzungs- und Wiederaufbauzeit
1870 Rückgabe an die Stadt Richmond, Einrichtung versteigert
1871 Nutzung als Schule bis 1894, neue Fenster an der Westseite, Umbau der Innenräume in Klassenräume
Ende 1889 Pläne der Stadt, das Gebäude zu schleifen für Bauplatz für eine neue Schule
1890 Bestrebungen der "Ladies Hollywood Memorial Association" (LMHA, eine der typischen Vereine von weiblichen Verwandten von Bürgerkriegs-Veteranen), das Gebäude zur Bewahrung von Andenken an die Konföderation zu verwenden
03.06.1894 Gebäude auf LMHA (bzw. kommerzielle Tochter-Gesellschaft) überschrieben
22.02.1896 "The Confederate Museum" eröffnet
1960 Beschluss zur gründlichen Umgestaltung, Auslagerung von Waffen und Bibliothek, Restauration der Räume in ihre historische Ausgestaltung, 1976 als "The Museum of the Confederacy" wiedereröffnet
06/1988 Wiedereröffnung nach 10-jährigem Umbau in den Zustand von 1860, sogar viele originale Möbel und Gegenstände, ausgelagerte Teile in benachbartem Neubau.
Heute ohne nennenswerte Grünanlage und eingerahmt von Hochhäusern der Downtown von Richmond.
Navigation: Zum Inhaltsverzeichnis - Zur Startseite